Home
Contact
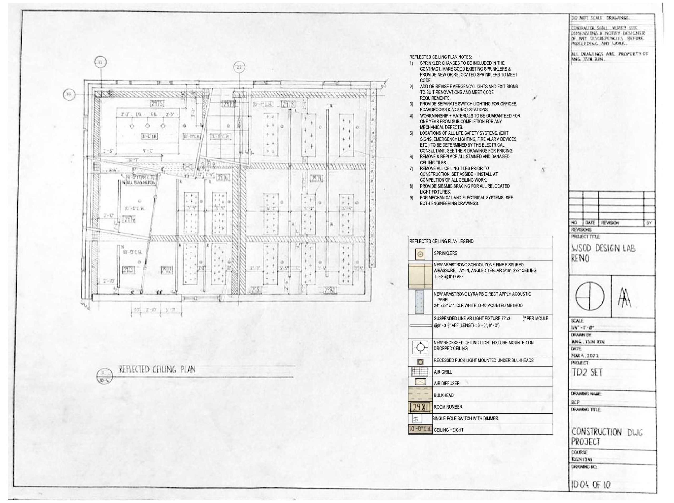
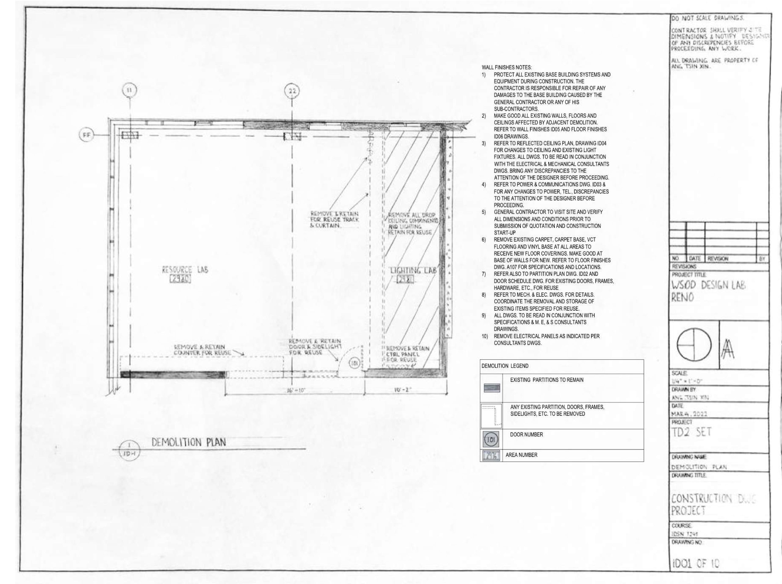
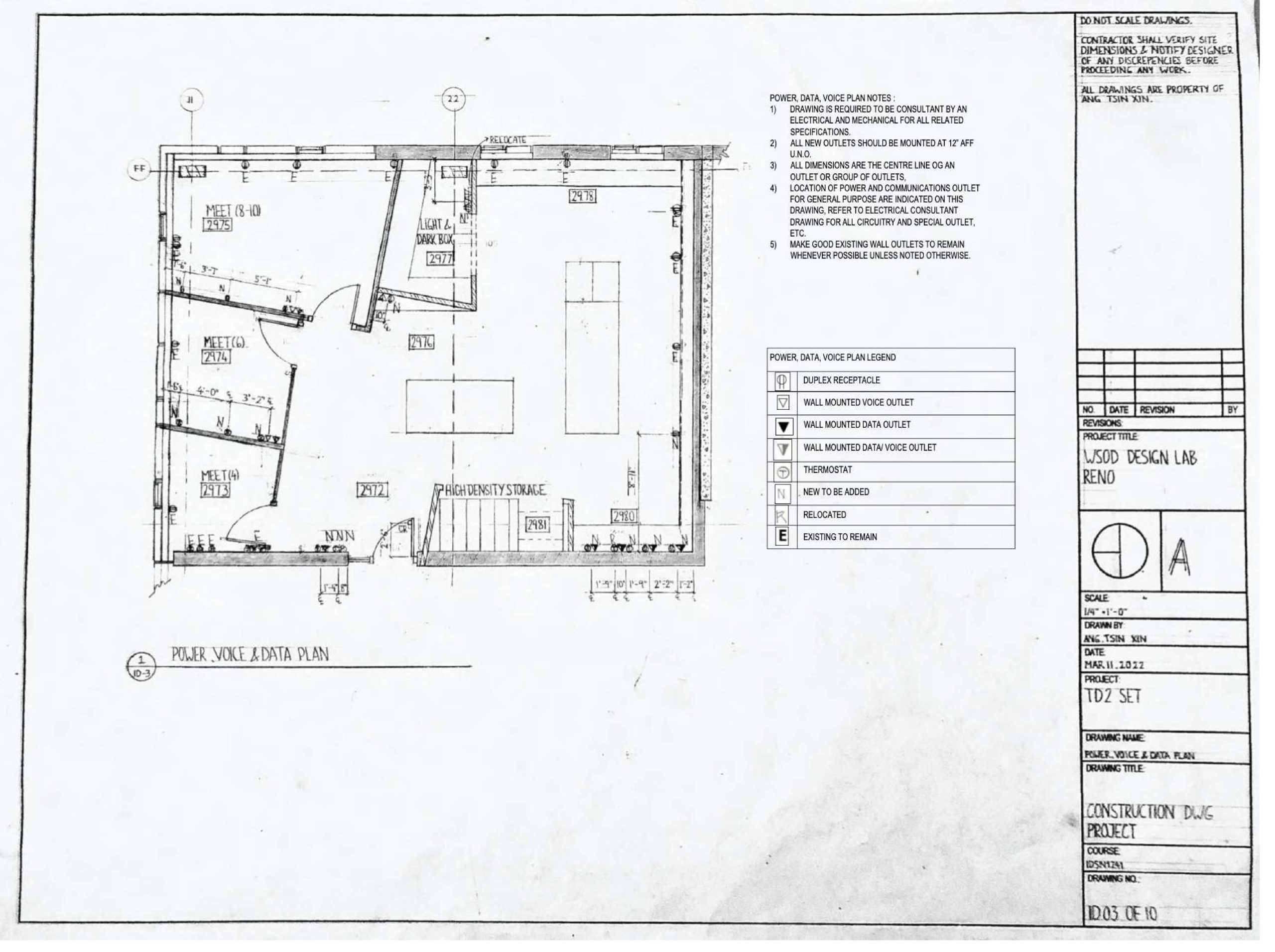
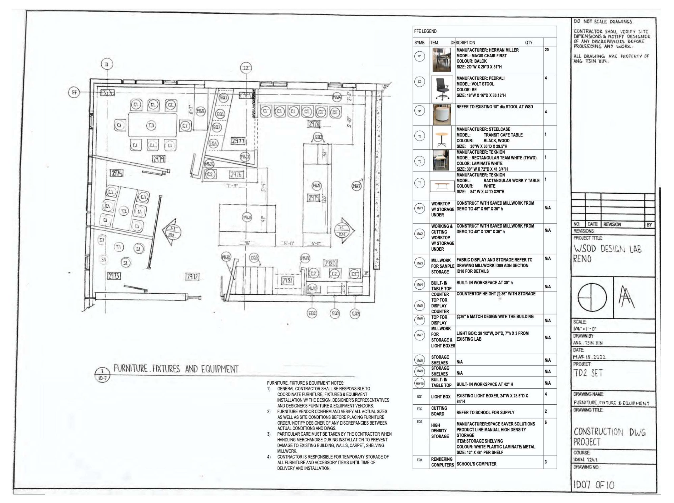
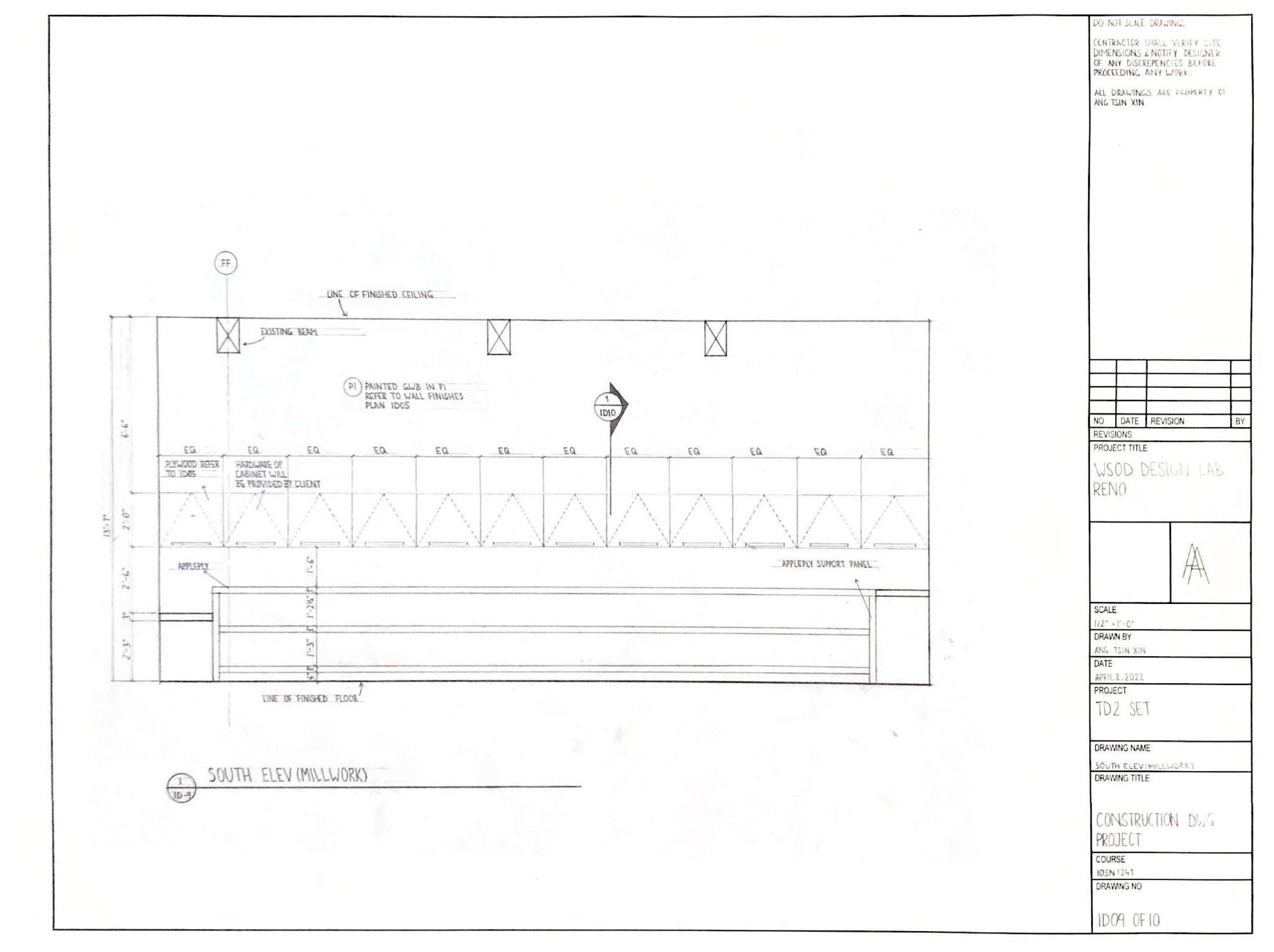
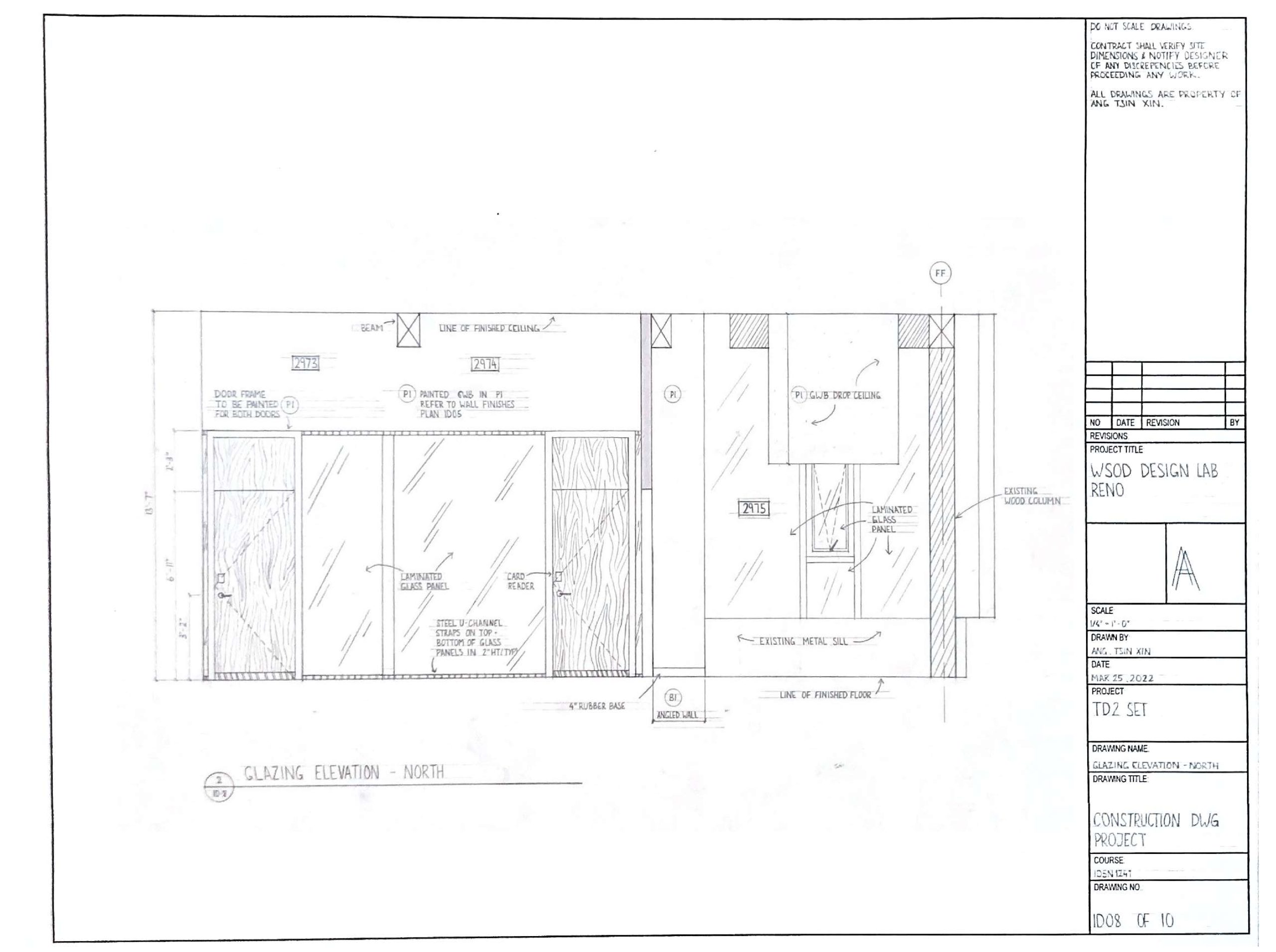
Construction Drawing Set Project
Demolition and redesign of Wilson School of Design’s lab room.